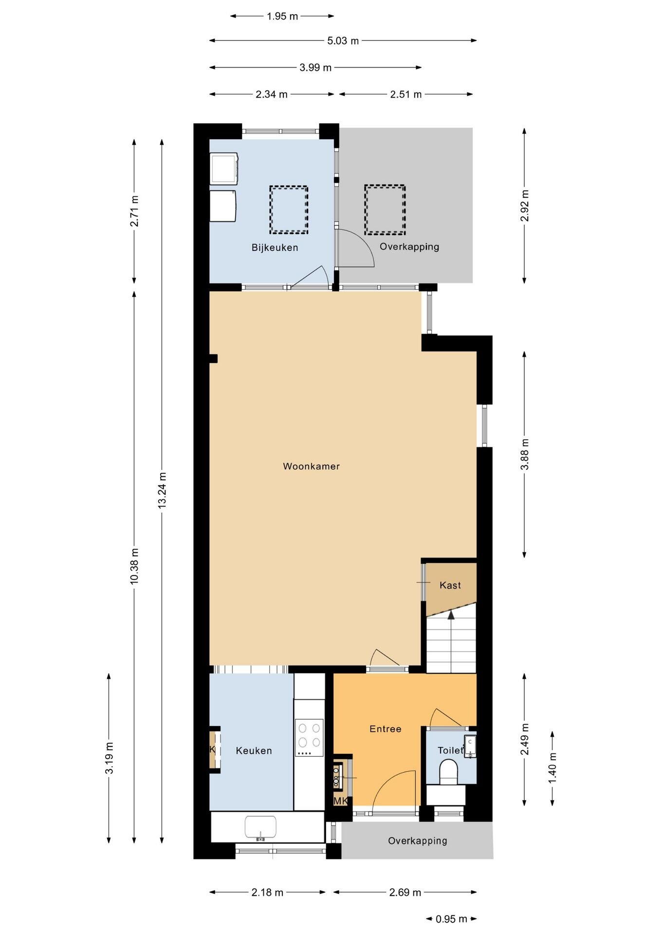
- Woonoppervlakte
- Circa 126 m²
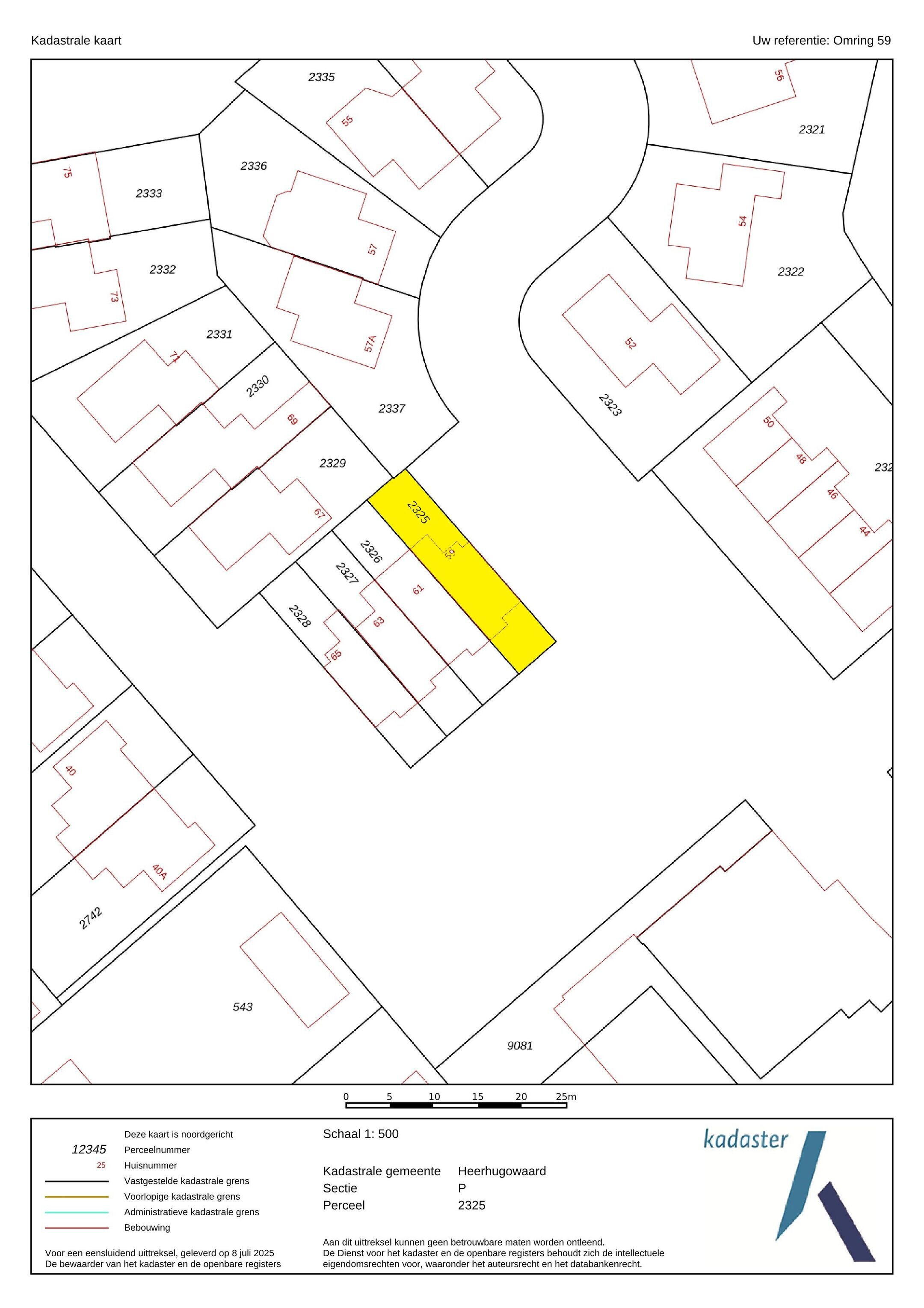
- Perceeloppervlakte
- Circa 146 m²
- Bouwjaar
- Gebouwd in 1991
- Aantal kamers
- 6 kamers (5 slaapkamers)
UITGEBOUWDE HOEKWONING – 5 SLAAPKAMERS, ENERGIELABEL A EN 10 ZONNEPANELEN!
Op zoek naar een ruime, instapklare gezinswoning met volop comfort en energiezuinige voorzieningen? Dan is deze uitgebouwde HOEKWONING aan de Omring 59 in Dijk en Waard precies wat je zoekt. Dankzij de uitbouw aan de achterzijde en de opbouw op de tweede verdieping is hier een royale en perfect afgewerkte gezinswoning ontstaan met maar liefst vijf slaapkamers.
Een hele fijne woning met voldoende ruimte, comfort en een verzorgde uitstraling. In de ruime woonkamer ligt een PVC vloer en de wanden zijn strak afgewerkt. Op de eerste verdieping zijn drie slaapkamers aanwezig, allemaal met laminaatvloeren en glad gestucte wanden. De tweede verdieping biedt nog eens twee royale slaapkamers, voorzien van vloerverwarming en een nette PVC vloer. Zowel de voor- als achtertuin zijn netjes aangelegd, en achterin de tuin staat een vrijstaande stenen berging.
De ligging is minstens zo fantastisch: in de groene en kindvriendelijke woonwijk ’t Kruis in Heerhugowaard. Hier woon je in alle rust, met alle voorzieningen binnen handbereik. Een basisschool, voortgezet onderwijs, speeltuinen, winkels en het prachtige Waarderhout bos liggen op loop- of fietsafstand. Bovendien ben je in een mum van tijd in het centrum van Heerhugowaard of via de uitvalswegen op weg naar Alkmaar, Amsterdam of Hoorn.
Check de EXCLUSIEVE EIGEN SITE VAN DE WONING voor meer informatie over de woning en de omgeving via de site van EV Wonen Makelaardij.
BEZICHTIGING:
Ben je net zo enthousiast als wij? Maak snel een afspraak via Funda of de website van EV Wonen Makelaardij!
INDELING
BEGANE GROND:
Entree met ruime hal, stijlvol toilet met natuursteen, trapopgang en toegang tot de woonkamer. De royale, tuingerichte woonkamer is strak afgewerkt met een PVC vloer, glad gestuukte wanden en plafond. Grote raampartijen zorgen voor veel lichtinval en een prettige sfeer.
De keuken bevindt zich aan de voorzijde en is uitgevoerd met diverse inbouwapparatuur waaronder een keramische kookplaat, koelkast, vaatwasser (2024), 3-laden vriezer, onder boiler voor een kokend waterkraan, draaicarrousel en veel bergruimte. Een fijne plek om lekker te koken.
De uitbouw aan de achterzijde beschikt over vloerverwarming en is een ideale bijkeuken met de aansluitingen voor de wasmachine en/of droger en extra bergruimte.
1e VERDIEPING:
Drie slaapkamers, allemaal voorzien van laminaatvloeren en glad gestuukte wanden en plafonds. De badkamer is compleet uitgerust met ligbad, douche en wastafel.
2e VERDIEPING:
Door de dakopbouw en de twee kunststof dakkapellen (2019) vinden we hier nog twee royale slaapkamers, beide met vloerverwarming, PVC vloer, glad gestuukte wanden en plafonds en rolluiken aan zowel de voor- als achterzijde. De CV-ketel (netjes weggewerkt in een kast) en mechanische ventilatie bevinden zich ook op deze verdieping. Via een vlizotrap is een bergvliering bereikbaar voor extra opslagruimte.
TUIN:
Een verzorgde achtertuin, verzorgd aangelegd, met toegang via een poort aan de achterzijde én aan de zijkant. Deels voorzien voorzien van sierbestrating en van mooie groene beplanting, maar vooral de privacy maakt deze tuin compleet. Achterin de tuin staat een vrijstaande stenen berging met elektra.
KENMERKEN:
Woonoppervlakte: ca. 126 m²
Perceeloppervlakte: ca. 146 m²
Inhoud: ca. 424 m³
Energielabel A
Betonnen verdiepingsvloeren
10 zonnepanelen (420wp/2023)
Volledig geïsoleerd (vloer, muur, dak, dubbel glas)
Vijf slaapkamers
Uitbouw aan achterzijde en opbouw tweede verdieping
Vloerverwarming in de bijkeuken, toilet beneden en op de tweede verdieping
LIGGING:
Gelegen in Heerhugowaard ‘t Kruis met een prima ligging dichtbij alle benodigde voorzieningen. De wijk beschikt over een evenemententerrein met jeu de boules velden, speeltoestellen en ijsbaan (indien het koud genoeg is), supermarkt, een actieve buurtvereniging en een goed aangeschreven basisschool.
Achter de woning ligt het bos Waarderhout van ongeveer 65 hectare groot. Het is een gevarieerd natuurgebied met bossen, waterpartijen en open ruimtes, beheerd door Staatsbosbeheer. Het is populair voor wandelen, fietsen en recreatie.
Voor je boodschappen, of om lekker even te winkelen, ben je zo op de fiets in het moderne stadshart van Heerhugowaard waar je het grootste overdekte winkelcentrum van Noord-Holland aantreft: Middenwaard. Hier kun je terecht voor een zeer ruim en compleet winkelaanbod. Ook vind je hier in de buurt een ruim aanbod van onderwijsinstellingen, recreatiemogelijkheden, vele goede restaurants, gezellige terrassen, een bioscoop, bowling, theater en het strand van Luna.
Het NS station, de bus, alles is zeer snel bereikbaar en via de diverse uitvalswegen is er een prima ontsluiting richting Alkmaar, Amsterdam of Hoorn.
PARKEERMOGELIJKHEDEN:
Parkeergelegenheid op de diverse openbare parkeerplekken.
Aanvaarding: in overleg
Deze woning is tot in de puntjes verzorgd, ruim van opzet en klaar voor de toekomst. Plan snel een bezichtiging en ontdek zelf hoe fijn het wonen is aan de Omring 59 in Heerhugowaard!
Overdracht
- Vraagprijs
- € 469.000 k.k.
- Status
- Verkocht
Bouw
- Object type
- Eengezinswoning, hoekwoning
- Soort bouw
- Bestaande bouw
- Bouwjaar
- 1991
- Soort dak
- Zadeldak bedekt met pannen
Oppervlakte en inhoud
- Woonoppervlakte
- 126 m²
- Perceeloppervlakte
- 146 m²
- Inhoud
- 424 m³
- Externe bergruimte
- 5 m²
- Gebouwgeb. buitenruimte
- 9 m²
Indeling
- Aantal kamers
- 6 kamers (5 slaapkamers)
- Aantal badkamers
- 1 badkamer en 1 apart toilet
- Badkamervoorzieningen
- Douche, ligbad, en wastafelmeubel
- Aantal woonlagen
- 3 woonlagen
- Voorzieningen
- Glasvezelkabel, mechanische ventilatie, en zonnepanelen
Energie
- Energielabel
- A
- Energielabel registratie
- 24-07-2025
- Isolatie
- Dakisolatie, dubbel glas, muurisolatie, vloerisolatie en volledig geïsoleerd
- Verwarming
- Cv-ketel en gedeeltelijke vloerverwarming
- Warm water
- Cv-ketel
- Cv ketel
- Remeha ( combiketel uit 2006, eigendom)
Buitenruimte
- Ligging
- Aan rustige weg en in woonwijk
- Tuin
- Achtertuin en voortuin
- Afmetingen achtertuin
- 67 m² (10,11 meter diep en 6,64 meter breed)
- ligging tuin
- Gelegen op het noordwesten bereikbaar via achterom
Bergruimte
- Schuur / berging
- Vrijstaande stenen berging
- Voorzieningen
- Elektra
Parkeergelegenheid
- Soort parkeergelegenheid
- Openbaar parkeren
Actueel energieverbruik
Energielabel deze woning
Energielabel A
Publicatie energielabel: 24-07-2025
Stroomverbruik per jaar
Omring 59, Heerhugowaard
Gasverbruik per jaar
Omring 59, Heerhugowaard
Indicatie hypotheeklasten
Eigen inleg:
Spaargeld / overwaarde
Rente:
Laagste 10-jaars rente
Laagste 10-jaars rente
2,76% - Centraal Beheer Groen... - NHG
2,98% - Centraal Beheer Groen... - 80%
Laagste 20-jaars rente
3,19% - Centraal Beheer Groen... - NHG
3,31% - Centraal Beheer Groen... - 80%
Laagste 30-jaars rente
3,34% - Centraal Beheer Groen... - NHG
3,47% - Centraal Beheer Groen... - 80%
Hypotheek:
Bruto maandlasten: € 0 p/m
Netto maandlasten: € 0 p/m
Hoe berekenen we dit?
Het rentepercentage is gebaseerd op de laagste 10-jaars vaste rente voor één hypotheekdeel. De vermelde rente (2.98% zonder NHG) is gecontroleerd op 25-09-2025. Deze berekening is gebaseerd op een annuïteitenhypotheek die volledig wordt afgelost, waarbij de maandlasten gedurende de gehele looptijd gelijk blijven. De werkelijke rente en netto maandlasten kunnen variëren, afhankelijk van uw persoonlijke situatie en de hypotheekverstrekker. Raadpleeg een financieel adviseur voor een nauwkeurige berekening en advies. Aan deze berekening kunnen geen rechten worden ontleend; het dient enkel als indicatie.
Documentatie
Kadastrale kaart
Leefomgeving
Brochure woning
Plattegronden PDF
BAG uittreksel
Lijst van zaken
Vragenlijst
Meetrapport
Bezoek onze website
Bezichtiging
Bod uitbrengen
Waardebepaling
Zoekopdracht
Alles downloaden
Zonnegrenzen bekijken
Op de kaart
Inwoners in Heerhugowaard
Cijfers voor postcodegebied 1702
- Totaal aantal inwoners
- 59045 inwoners
- Mannen
- 51%
- Vrouwen
- 49%
Inwoners in Heerhugowaard
Cijfers voor postcodegebied 1702
- tot 15 jaar
- 17%
- 15 tot 25 jaar
- 13%
- 25 tot 35 jaar
- 25%
- 45 tot 65 jaar
- 27%
- 65 en ouder
- 18%
Huishoudens in Heerhugowaard
Cijfers voor postcodegebied 1702
- Eenpersoons zonder kinderen
- 32%
- Meerpersoons zonder kinderen
- 34%
- Huishoudens zonder kinderen
- 66%
Huishoudens in Heerhugowaard
Cijfers voor postcodegebied 1702
- Huishoudens met één kind
- 9%
- Huishoudens met meerdere kinderen
- 25%
- Huishoudens met kinderen
- 34%
Woningen in Heerhugowaard
Cijfers voor postcodegebied 1702
- Woningen voor 1945
- 2%
- Woningen tussen 1945 en 1965
- 2%
- Woningen tussen 1965 en 1975
- 68%
- Woningen tussen 1975 en 1985
- 6%
- Woningen tussen 1985 en 1995
- 5%
Woningen in Heerhugowaard
Cijfers voor postcodegebied 1702
- Woningen tussen 1995 en 2005
- 1%
- Woningen tussen 2005 en 2015
- 12%
- Woningen na 2015
- 4%
- Huurwoningen
- 40%
- Koopwoningen
- 60%
Overige in Heerhugowaard
Cijfers voor postcodegebied 1702
- Gemiddelde WOZ waarde
- € 231.000,-
- Personen onder de 65 met uitkering
- 9%
Overige in Heerhugowaard
Cijfers voor postcodegebied 1702
- Adressen per km²
- 1993
- Stedelijkheid (schaal 1 op 5)
- 80%


Wie is EV Wonen Makelaardij?
Het verlaten van je oude woning of het ontdekken van je nieuwe droomhuis is een ongelooflijk opwindend proces voor de meeste van onze klanten. Er zijn zoveel besluiten te nemen en talloze factoren die invloed hebben op het behalen van het best mogelijke resultaat voor jou. Bovendien is de vraag naar woningen sterk gestegen en hebben de prijzen recordhoogtes bereikt.
In deze dynamische en vaak onvoorspelbare markt zijn wij de toonaangevende verkoopmakelaar in de regio, goed geïnformeerd over de lokale huizenmarkt en de verkoopmogelijkheden van jouw woning.
We hebben voor veel klanten uitstekende verkoop- of aankoopresultaten behaald. Wij volgen geen vaste methoden, omdat we geloven dat elke woning en verkoper uniek is. Bij ons kun je rekenen op een persoonlijke benadering. Ons succesgeheim is dat we alledaagse dingen buitengewoon goed uitvoeren.
Een huis met succes verkopen is geen eenvoudige taak. EV Wonen Makelaardij biedt:
– een solide verkoopstrategie;
– een eersteklas presentatie met altijd een toppositie op Funda;
– een gedreven en gecertificeerde Register Makelaar/Taxateur;
– proactief gebruik van sociale media;
– en een flinke portie lokale marktkennis.
Onze aanpak heeft de afgelopen jaren geleid tot een zeer hoge Funda klantbeoordeling van 9,5! Dit betekent dat klanten met een goed verkoopproces uitstekende verkoopresultaten hebben behaald.
We besteden veel aandacht aan jouw persoonlijke situatie en de specifieke kenmerken van jouw woning. Dit, in combinatie met een goede communicatie, garandeert een succesvol verkoop- of aankooptraject. Benieuwd wat we voor jou kunnen doen? We komen graag vrijblijvend langs voor advies op maat.
Naast Heerhugowaard zijn we ook actief als makelaar in Alkmaar, Oterleek, Langedijk, Hensbroek, Obdam en omgeving.
Wij kunnen je op een unieke en persoonlijke manier volledig ontzorgen als verkoopmakelaar of aankoopmakelaar bij de verkoop of aankoop van jouw woning.

Nieuwste reviews
-
Ans van der Beek
Edwin is een zeer vriendelijke, enthousiaste en kundige makelaar, die binnen een week mijn huis heeft verkocht! Hij hield ons goed op de hoo...
-
Breesloot 22
Het contact liep erg soepel, alle wensen die we hadden werd naar gehandeld. Zelfs in de vakantie periode.Zeer fijne makelaar met een mooi te...
-
Jasmijn 8
Edwin is een ervaren makelaar met een heldere kijk op de markt en de klant.Hij heeft een groot klantenbestand en toch weet hij het zo te pla...